STUDIO 1
Set build space
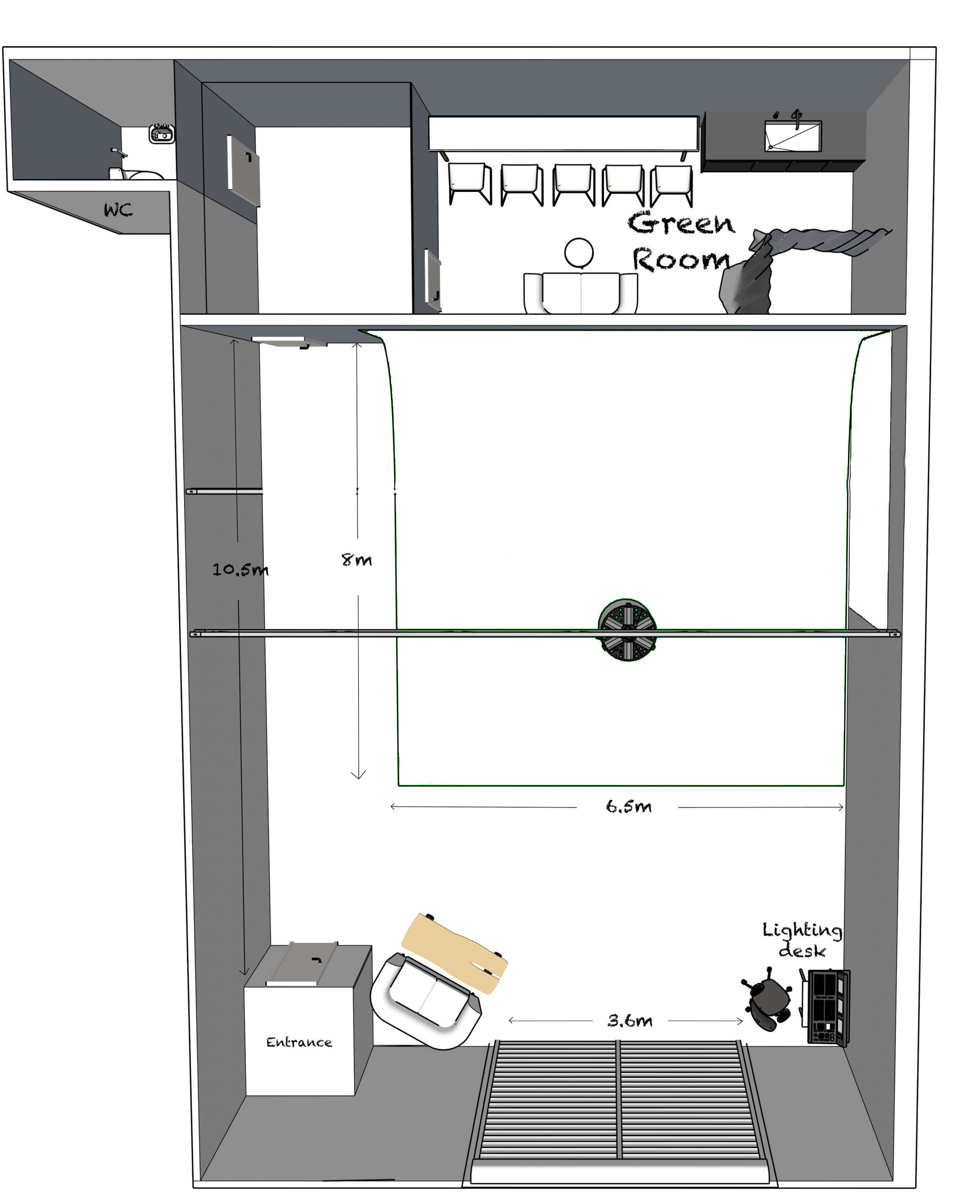
About Studio 1
Studio 1 is our largest and most adaptable studio, ideal for short films, set builds, music videos and creative shoots. Its flexible lighting setup makes it a favourite with bands and creative, who keep coming back to create striking visual content.
With full-height shutter doors, Studio 1 allows vehicles to be driven directly into the space, making it perfect for car shoots.
Studio 1 can also be converted into a rain room or ice room, making it suitable for rain effects, cold-environment shoots, performance pieces and dance projects
A mezzanine level overlooks the studio, making it easy to film behind-the-scenes, direct shoots, or capture overhead shots, giving extra flexibility.
Because each production needs a unique setup bookings are made by phone or email, so we can tailor the studio to your needs. Take a look at the photos to see how previous clients have transformed Studio 1.
The studio is equipped with a desk-controlled lighting grid, and additional lighting, camera and grip can be supplied via Firebug Lighting if required. Check out our equipment page or visit www.firebuglighting.com

Rates / Packages
Studio 1 – Drive in studio Dry Hire
Prices from £320 per day
(discounts for multiple days)
Includes overhead lighting grid, stands, boom, frames, flags and poly boards
We’ll show you how to use the lighting grid when you arrive. If you want to hire a camera operator or lighting technician, please contact us for prices. We also hire all cameras and additional lighting
FEATURES
- 7m ceiling height
-
11m x 7m shooting space
-
Drive-in access via shutter doors (ideal for car shoots)
-
Convertible rain room and ice room (for effects & performance)
-
Fully equipped for music videos and creative lighting setups
-
Desk-controlled LED lighting grid
-
Black-out drapes
-
Separate changing room / make-up area
-
Selection of stands, polyboards and frames
-
Large selection of Colorama available to hire
-
Studio can be painted any colour

If you need crew, we can supply camera operators, sparks, make up artists and photographers.
